

JUNIPER
Located on the largest undeveloped parcel of land in Rockwall, Texas, Qualico Communities Dallas-Fort Worth (DFW) is advancing its vision for community living through its latest project, Juniper. Spanning 536 acres, this neighborhood project blends natural beauty, connectivity, and thoughtful design to meet the dynamic needs of Rockwall’s evolving population. Juniper is set to be a cornerstone development for Qualico Communities and the city of Rockwall.
“This project is a culmination of strategic planning and a deep understanding of the region,” said John Vick, Vice-President, Qualico Communities DFW.
After more than 16 months of navigating the planning and approval process, including rigorous engagement with city stakeholders, the development gained approval in early 2025. Qualico’s vision for Juniper is ambitious yet grounded, offering a lifestyle of connectivity, access to nature, and spaces that foster community interaction.
The community’s name pays homage to the heavily wooded areas of the property, which are dominated by eastern red cedar trees, scientifically known as Juniperus Virginiana.
“We knew we wanted a name that was simple, strong, and reflective of the land,” said John.
The project draws inspiration from juniper trees and will include them in the community’s landscape, reflecting careful planning in Juniper’s development.
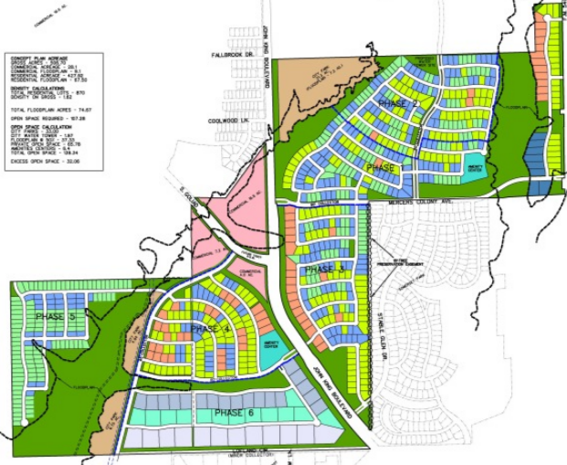
Planned as a community for all, Juniper will offer 870 single-family lots of varying sizes, creating opportunities for a wide range of homeowners. Its design includes two distinct amenity centers, each offering a unique experience. The family-focused center on the east side will feature playgrounds for children of all ages, a pool area with a splash pad, and shaded spaces ideal for barbecues and gatherings. Meanwhile, the west-side center embraces a more resort-like ambiance, with elegant, covered areas and spaces geared for relaxation.
Connectivity within Juniper is just as essential, with seven miles of trails linking the entire community together, providing recreational opportunities and direct access to nearby schools. Qualico Communities demonstrates its dedication to environmental stewardship through the allocation of 33 acres for parks and an additional 136 acres of open space, which includes protected floodplain regions.
Juniper benefits from its strategic location at the intersection of major thoroughfares, just over one mile from Interstate 30. The accessibility is a significant draw, connecting residents to Rockwall’s amenities and the broader Dallas-Fort Worth metroplex. An additional 43 acres within the development have been designated for neighborhood commercial services, providing convenience for residents while preserving the community feel.
Qualico acquired the property in early 2025 after the landowners, familiar with the company’s success in other projects, invited them to unlock the land’s potential.
Juniper represents the largest project Qualico Communities has undertaken in Rockwall, and its development aligns perfectly with the city’s vision for growth. Despite obstacles such as shifting municipal leadership and evolving development policies, the approval of Juniper highlights its promise as a development that achieves a balance between increased density and deliberate urban planning.
With Phase 1 construction anticipated to begin early 2026, Juniper is set to redefine community living in Rockwall.

